13351
Berlin
Handliche Größe für den Anfang!

Objektdaten

Kaufpreis
285.000 €
Ort
13351
Berlin
Wohnfläche
57 m²
Zimmer
2
Objektart
Wohnung
Verfügbar ab
sofort
Etage
2
Anzahl der Etagen
4
Badezimmer
1
Schlafzimmer
2
Anzahl der Balkone
1
Ausstattung

- 2-Zimmer
- Balkon
- zentrale Lage
- renovierungsbedürftig

Objektbeschreibung
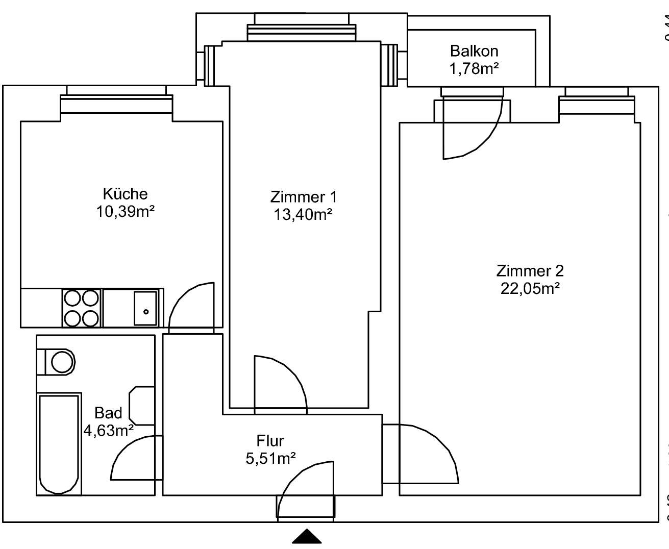
Verkauft wird eine gut geschnittene 2-Zimmer Wohnung, gelegen im 2. OG des Vorderhauses eines gepflegten Alt-Berliner Mehrfamilienhauses. Man betritt die Wohnung über einen kleinen Flur von welchem geradezu das bisherige Wohnzimmer mit Erker abgeht. Rechts des Flures befindet sich das große Wohnzimmer mit Austritt zum Balkon. Linker hand des Flures ist das innenliegende Bad mit Wanne und Waschmaschinenanschluß und daran anschließend die Küche. Sie benötigt hier und da etwas Zuwendung; alles in allem aber kein sehr großer Aufwand. Dafür gibt es hier hohe Decken und ein gepflegtes Gemeinschaftseigentum. Alles in allem handelt es sich hier um eine Wohnung mit viel Potential in zentraler Lage zum einem vergleichsweise fairen Preis.
Lage
Die Cornelius-Fredericks-Straße verläuft nördlich zwischen Seestraße und Ottawistraße parallel zur Müllerstraße im Afrikanischen Viertel des Berliner Traditionsbezirks Wedding. Ein paar hundert Meter entfernt ist der Schillerpark, dieser zählt zwar nicht zu den größten Parks der Stadt, aber unzweifelhaft zu den interessantesten. Zwei große, baumgesäumte Wiesen, zentral die Terrassen um das beeindruckende Denkmal des Namensgebers, verbunden mit einer alten Festungsanlage, ein schöner Rosengarten, und, na klar, Joggen kann man hier natürlich auch. Auf der benachbarten Müllerstraße gibt es bunte und vielfältig Einkaufsmöglichkeiten, türkische, bulgarische, vietnamesische, afrikanische Obst- und Gemüsehändler, Kaufland, Edeka, Aldi, alles da, je nach Gusto. Genauso bunt und abwechslungsreich ist auch die Küche vor Ort, sozusagen „Berlin at its best“. Über die Tramlinien 50 und 13 und die U-Bahnstation Seestraße der Linie U6 hat man Anschluss an den ÖPNV. Der Leopoldplatz, das Zentrum dieses aufregenden Bezirks, ist lediglich eine Station entfernt. Fährt man ein paar Stationen weiter, gelangt man direkt zur Friedrichstraße und Stadtmitte.
Käuferprovision
3,57 % inkl. MwSt.

weitere Informationen

Objektzustand
renovierungsbedürftig
Heizungsart
Zentralheizung
Primärenergieträger
Gas
Energieausweistyp
VERBRAUCHAUSWEIS
End­energie­verbrauch
102
Energie­effizienz­klasse
D
Gültig bis
23.04.2028
Sicher + Schnell

Vollständiges Exposé anfordern

Direkter Kontakt

Ihre Ansprechpartnerin

Sarra Saddek

Kundenbetreuung

Sicher & Schnell

Teilen Sie uns Ihr Anliegen mit.